Parc agricole du Zavelenberg
Bruxelles (BE)
Bruxelles (BE)
Maître d’œuvre : Les Marneurs (mandataire), Fabriques, Util, Le Début des Haricots, CRA-W, Calm-e, WaLK, Securisan
Programme : Monument agricole et agriculture urbaine
Mission : concours
Coût : 867.735 € HT
Surface : 1100m² hangar - 8,4ha parc
Date : 2020





Patrimoine agricole
Le site du Zavelenberg se situe le long de l’avenue Charles Quint, qui constitue l’une des principales portes d’entrée sur Bruxelles, structurant fortement le nord de la métropole. Le Zavelenberg s’inscrit dans la séquence urbaine est-ouest qui témoigne des grands travaux qu’a connu la ville aux 19e et 20° siècles, croisant ainsi l’échangeur, la Basilique du Sacré-Coeur, le boulevard Léopold II, le canal de Charleroi, le ring et le Jardin botanique. C’est aussi un patrimoine agricole, témoignant de la production céréalière, maraîchère et horticole des paysages agraires du Pajottenland.
C’est un site précieux à l’échelle de la métropole qui se retrouve aujourd’hui ceinturé par les infrastructures routières et ses limites se caractérisent tantôt par des fonds de parcelles clôturés, tantôt par un rapport subi aux voiries du quartier, notamment le long de l’avenue Charles Quint. Il s’agit aujourd’hui de conforter sa préservation à long terme, par une exploitation agricole durable d’une part mais aussi selon nous par une ouverture plus grande sur la ville et ses habitants.
Le site du Zavelenberg se situe le long de l’avenue Charles Quint, qui constitue l’une des principales portes d’entrée sur Bruxelles, structurant fortement le nord de la métropole. Le Zavelenberg s’inscrit dans la séquence urbaine est-ouest qui témoigne des grands travaux qu’a connu la ville aux 19e et 20° siècles, croisant ainsi l’échangeur, la Basilique du Sacré-Coeur, le boulevard Léopold II, le canal de Charleroi, le ring et le Jardin botanique. C’est aussi un patrimoine agricole, témoignant de la production céréalière, maraîchère et horticole des paysages agraires du Pajottenland.
C’est un site précieux à l’échelle de la métropole qui se retrouve aujourd’hui ceinturé par les infrastructures routières et ses limites se caractérisent tantôt par des fonds de parcelles clôturés, tantôt par un rapport subi aux voiries du quartier, notamment le long de l’avenue Charles Quint. Il s’agit aujourd’hui de conforter sa préservation à long terme, par une exploitation agricole durable d’une part mais aussi selon nous par une ouverture plus grande sur la ville et ses habitants.
S’appuyant sur les spécificités topographiques, historiques, géologiques et écologiques, le projet génère une mosaïque de milieux naturels et cultivés, dessinant les parcours d’un parc « à l’anglaise » révélant le paysage vallonné et rythmé par le bocage.
Le premier enjeu est donc de penser une accessibilité pour tous les publics, y compris personnes âgées et handicapés sur un site parfois très pentu. L’autre enjeu important et de mettre en valeur les accès existants voire d’en créer de nouveaux pour accrocher le site aujourd’hui peu accessible, aux différentes situations urbaines qui l’entourent.
Vers la résilience alimentaire
Le projet de transformation du site du Zavelenberg en un parc naturel concilie préservation d’écosystèmes et agroécologie et doit nécessairement s’inscrire dans la démarche de résilience alimentaire portée par la Région à travers les actions de Bruxelles Environnement. La démarche pilote permettra d’installer des pratiques culturales répondant aux systèmes alimentaires de demain.
Le premier enjeu est donc de penser une accessibilité pour tous les publics, y compris personnes âgées et handicapés sur un site parfois très pentu. L’autre enjeu important et de mettre en valeur les accès existants voire d’en créer de nouveaux pour accrocher le site aujourd’hui peu accessible, aux différentes situations urbaines qui l’entourent.
Vers la résilience alimentaire
Le projet de transformation du site du Zavelenberg en un parc naturel concilie préservation d’écosystèmes et agroécologie et doit nécessairement s’inscrire dans la démarche de résilience alimentaire portée par la Région à travers les actions de Bruxelles Environnement. La démarche pilote permettra d’installer des pratiques culturales répondant aux systèmes alimentaires de demain.






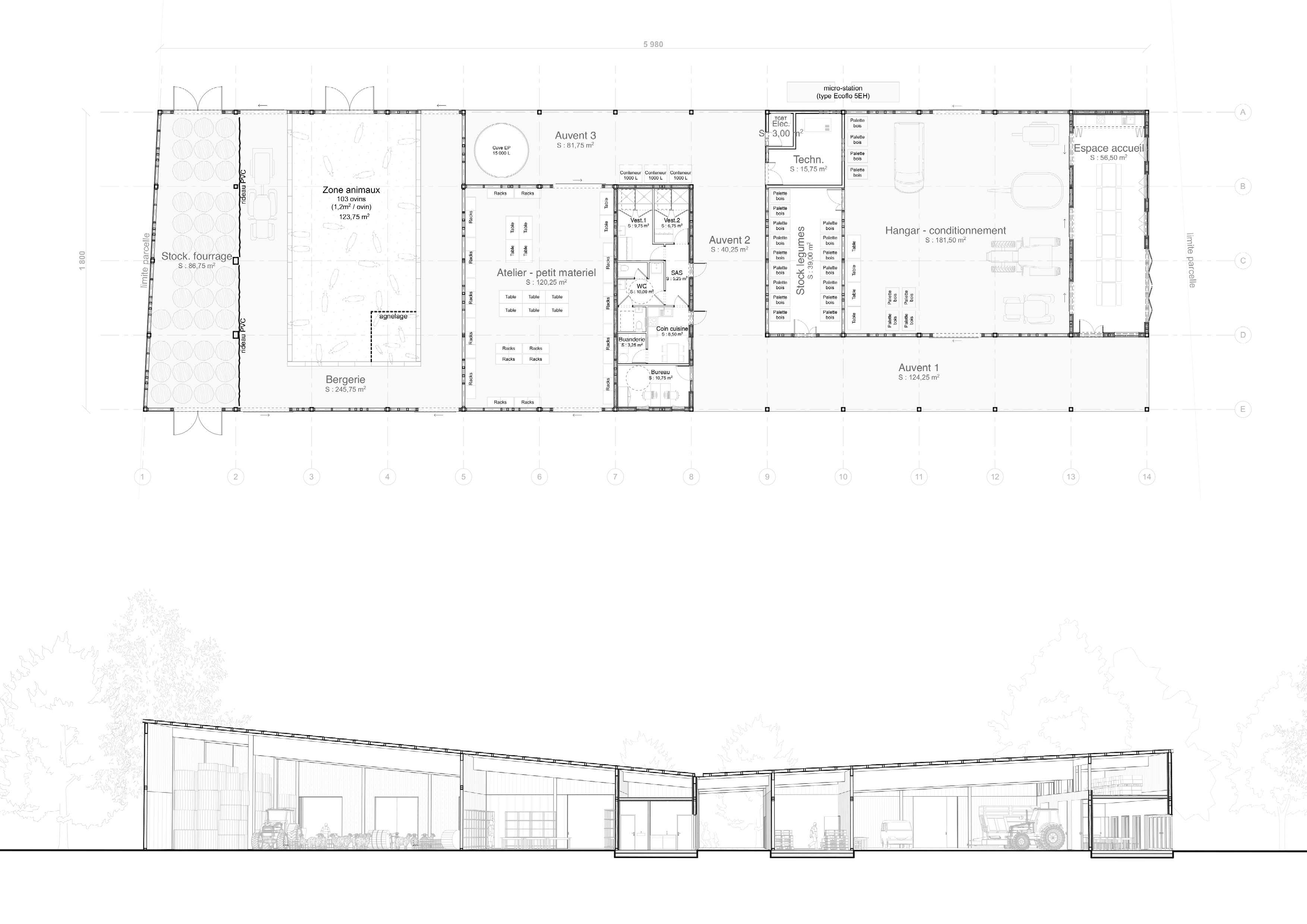
Avec son inscription dans son environnement, le bâtiment agricole est un marqueur discret et structurant pour l’ensemble du parc agricole du Zavelenberg, et crée des continuités et des rapports d’échelles sur le site.
Le bâtiment fait l’interface avec les différents accès et espaces urbains voisins : à l’est, vers l’ancienne rue de Termonde, accès le plus naturel et visible ; au sud, en dialoguant avec les habitants de l’immeuble voisin ; au nord, vers un espace fonctionnel agricole et ouvert sur les espaces cultivés.
Le bâtiment fait l’interface avec les différents accès et espaces urbains voisins : à l’est, vers l’ancienne rue de Termonde, accès le plus naturel et visible ; au sud, en dialoguant avec les habitants de l’immeuble voisin ; au nord, vers un espace fonctionnel agricole et ouvert sur les espaces cultivés.
L’ensemble du bâtiment est pensé pour sa polyvalence d’usages. Les espaces peuvent à la fois recevoir une destination agricole, et leur souplesse et évolutivité permet d’envisager des usages multiples et diversifiés : la bergerie peut devenir un lieu de visite ; l’atelier un espace de formation ; ou le hangar un lieu festif.
Le bâtiment est construit suivant le principe de la réversibilité et avec une démarche de moindre impact environnemental qui passe notamment par des ressources locales et des matériaux de réemploi.
Le bâtiment est construit suivant le principe de la réversibilité et avec une démarche de moindre impact environnemental qui passe notamment par des ressources locales et des matériaux de réemploi.